CASA GS

SAN ANDRÉS

ARQUITECTURA
QUIRÓS PRESA
Pablo López Presa + Itziar Quirós
Director de EJECUCIÓN
Miguel Ángel Gutiérrez Retuerto 
ESTRUCTURAS

Alfredo Lafuente Laguna

CONSTRUCTOR

CANAL REDONDO S.L.

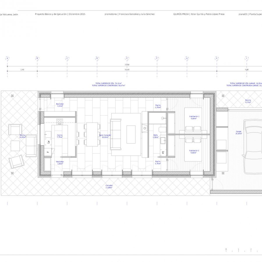
 Superficie

130m2
Estado
Construido 2015